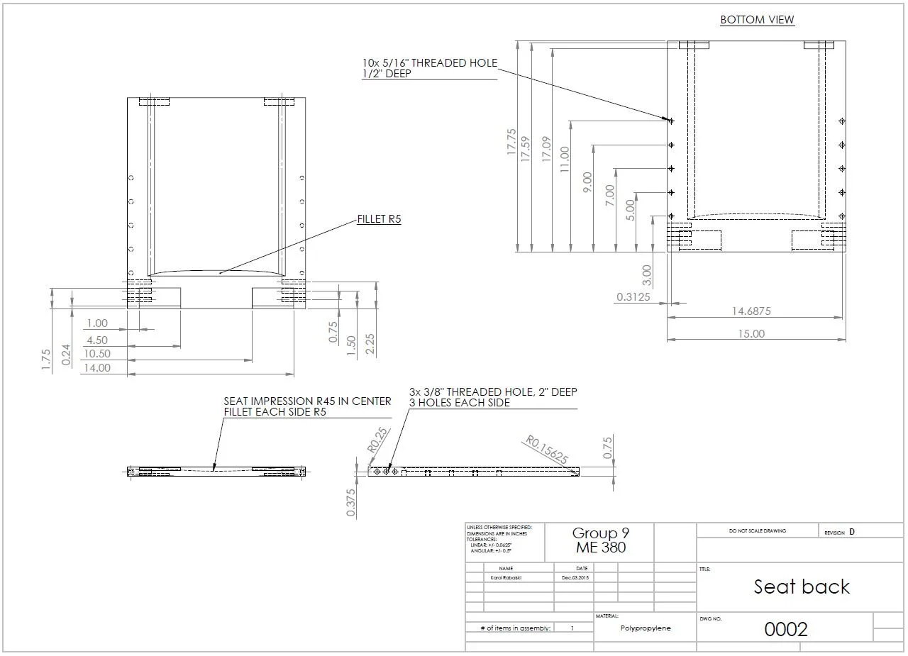
The third year of my mechanical engineering program featured a design course that served as a precursor to the fourth year capstone project. My group’s project was an adjustable, ergonomic and affordable classroom chair. I was responsible for the chair’s design, 3D modelling, engineering drawings and construction of a working prototype. The report for this project can be found here.

Previous
Previous

hi, how are you